Pasporty staveb &
Digitalizace výkresů
Profesionální dokumentace nemovitostí. Zaměření do 48 hodin, dodání v DWG i PDF.
500+
Projektů
20+ let
Zkušeností
48h
Zaměření
Naše služby
Pasport stavby
Kompletní dokumentace stávajícího stavu budovy pro úřady, pojišťovny a rekonstrukce.
Překreslení / Digitalizace
Převedeme vaše papírové výkresy do formátu DWG kompatibilního s AutoCAD.
Projekty pro odstranění stavby
Dokumentace pro demolice a odstranění staveb včetně všech potřebných povolení.
Konzultace a realizace oken
Poradenství, výběr a montáž oken a dveří pro novostavby, rekonstrukce a výměny.
Konzultace a realizace topení
Poradenství, návrh a dodávka topných systémů a potřebného vybavení pro vaši nemovitost.
Požární bezpečnost
Konzultace a realizace požárně bezpečnostního řešení staveb včetně projektové dokumentace.
Projekce staveb
Kompletní projektová dokumentace rodinných domů, dřevostaveb a rekreačních chat. Projektujeme od roku 2006.
Kresličské a konstrukční práce
Výkresy tvaru a výztuže, výrobní dokumentace a konstrukční detaily jako podklad pro realizaci.
Projekce vodovodní přípojky
Projektová dokumentace pro napojení nemovitosti na veřejný vodovodní řad včetně potřebných povolení.
Projekce kanalizační přípojky
Projektová dokumentace pro napojení nemovitosti na veřejnou kanalizaci včetně potřebných povolení.
← Swipněte pro další →
0+
dokončených projektů
0+
let zkušeností
0h
doba zaměření
0%
platné pro úřady
Naše práce mluví za nás
← Swipněte pro další →
Co říkají naši klienti
"Ochota, rychlost, bezproblémová komunikace."
Info
6. srpna 2025
"Rychlá práce, bezproblémová komunikace. Určitě poptáme znovu"
Lenka Beránková
13. března 2025
"Vypracováno v termínu a za dohodnutou cenu."
Petr 199101
6. března 2025
← Swipněte pro další →
Poptejte naše služby
Zanechte nám zprávu a do pár hodin se ozveme s nabídkou
Děkujeme za vaši poptávku!
Někdo z týmu se vám co nejdříve ozve s nabídkou.
Časté dotazy
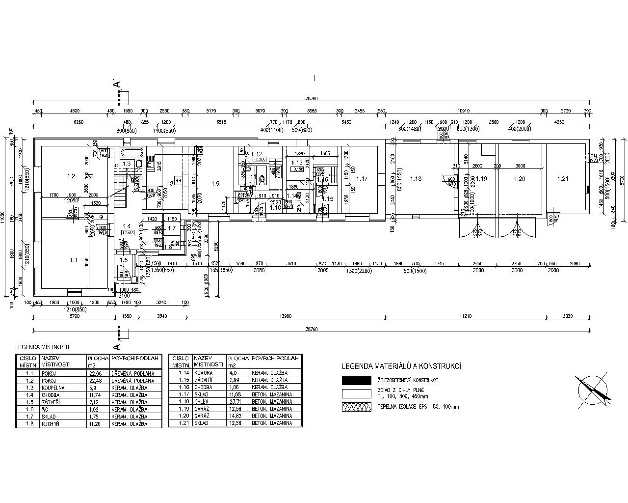
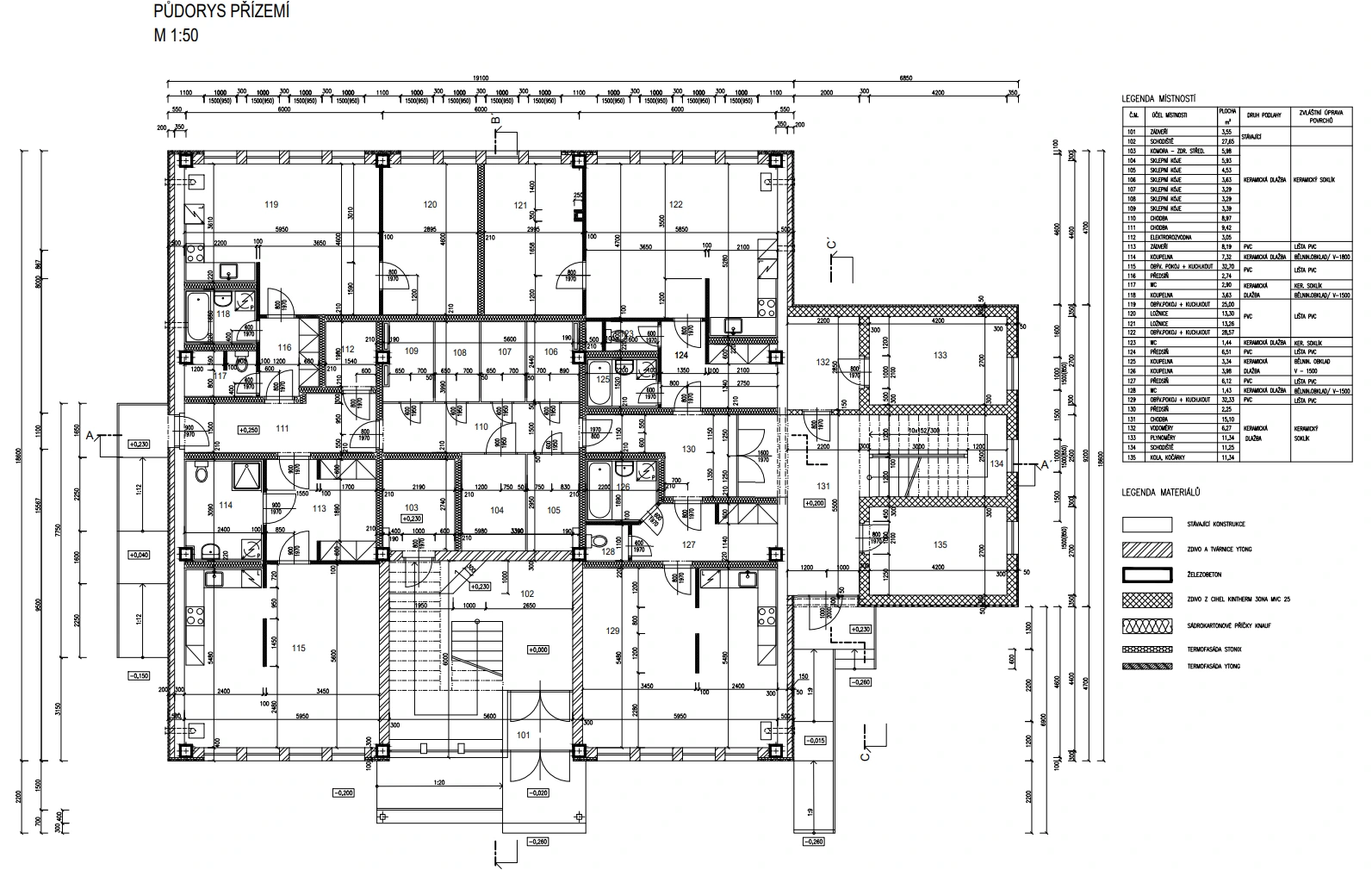
Pasport stavby je zjednodušená dokumentace stávajícího stavu budovy. Obsahuje půdorysy všech podlaží, řezy, pohledy a technickou zprávu. Je vyžadován stavebními úřady pro kolaudaci, změnu užívání nebo legalizaci stavby.
Standardní zakázka na digitalizaci výkresů trvá 3-5 pracovních dní od zaměření. U urgentních zakázek nabízíme express zpracování do 48 hodin. Rozsáhlé projekty mohou trvat déle dle dohody.
Cena pasportu závisí na velikosti a složitosti objektu. Orientačně se pohybuje od 5 000 Kč za malý byt po desítky tisíc za větší komerční objekty. Přesnou cenu vám rádi sdělíme po posouzení konkrétního objektu.
Ano, veškerá dokumentace, kterou zpracováváme, splňuje požadavky stavebních úřadů a je platná pro účely kolaudace, ohlášení stavby, změny užívání a další správní řízení.
Výstupy dodáváme ve formátech DWG (AutoCAD), PDF a na vyžádání i v dalších formátech (DXF, BIM/IFC). Součástí dodávky je vždy i tištěná verze dokumentace.
Ano. Zpracujeme projektovou dokumentaci vodovodní i kanalizační přípojky pro rodinné domy, chaty i stávající objekty — od situačního výkresu a podélného profilu přes vodoměrnou nebo revizní šachtu až po vyřízení vodoprávního povolení. Pokud veřejná kanalizace není dostupná, navrhneme alternativní řešení (domovní ČOV, jímka, vsakování).